(有)健光住宅メニュー 
     「メインメニュー」 「土地物件」 「中古物件」 「借家・アパート」 「会社概要」 「資料請求」

 那須「築浅・ロイヤルバレー」中古
 
  価格:3,500万円 取引形態:仲介
所在  那須郡那須町大字高久丙字海道上403ー●●
面積
 土地:594u    (179.68坪)
 建物:129.85u (39.27坪)
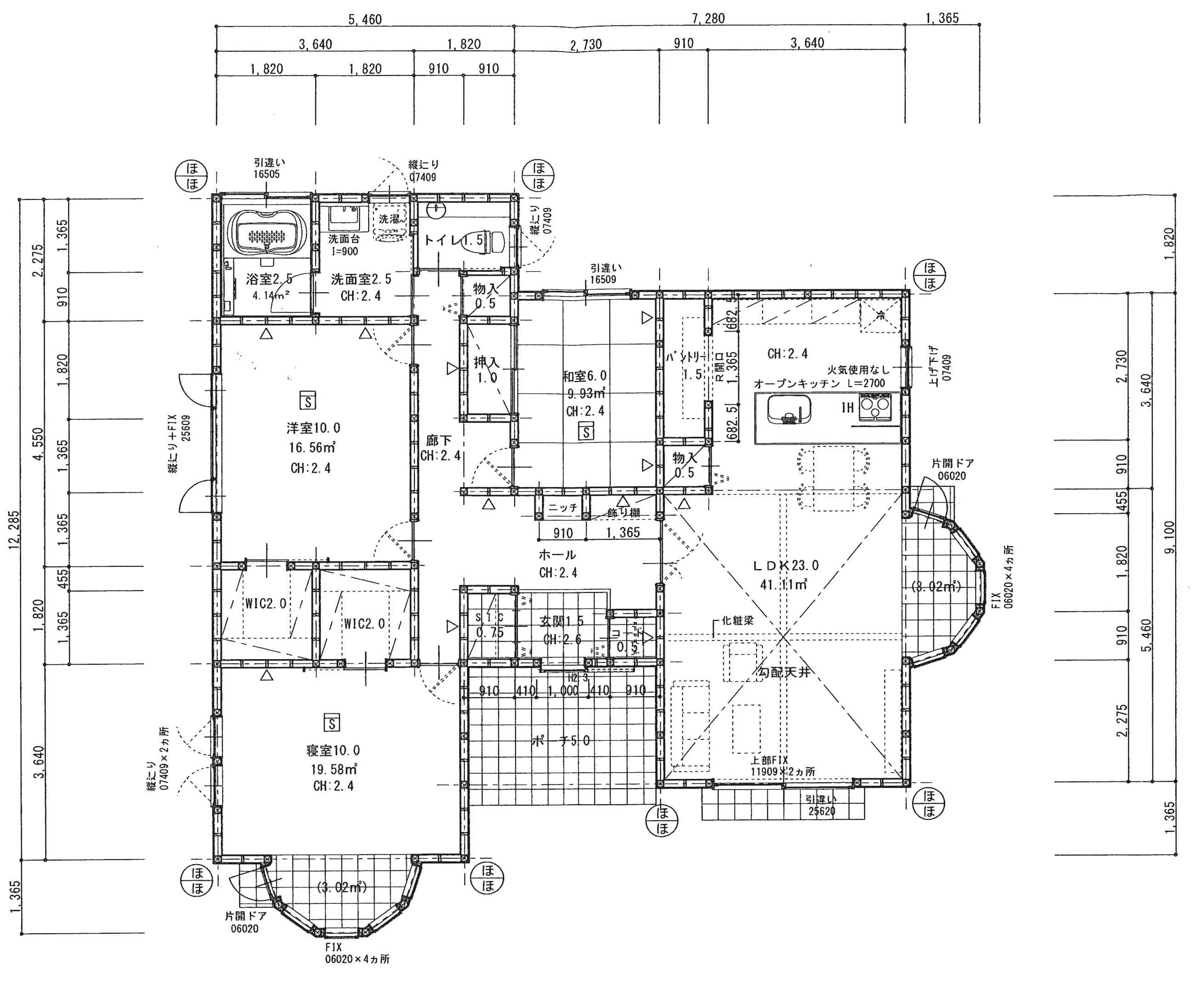
間取  建物図面はこちらから
接面道路  南 巾約4.7m 舗装道路
設備  
 電気:東京電力  水道:私設水道  ガス: IHを利用

 排水:合併浄化槽  その他排水:合併浄化槽

建物構造  木造合金メッキ鋼板ぶき平家建
築年月  新築:令和6年2月
築浅(築後2年)リゾート別荘地「ロイヤルバレー」内にある平家住宅。
3LDKの建物は広々設計。リビングは23帖。洋室11帖・10帖。和室6帖と別荘のご利用のみならず定住にも最適で、那須高原の四季折々の姿をご堪能することができます。
庭は未開拓の為、ドッグランやお庭づくり等をお好きな様に造ることができます♪
周辺には観光地・温泉施設・スーパー・薬局と充実しており、生活も便利です。
築2年の築浅平家住宅で、那須ライフをご検討してみてはいかがでしょう。

資料請求,案内のご予約等はこちらからお申し込みください★

外観
リビング・寝室2部屋・和室
洗面所・風呂・トイレ
玄関・ホール
                           
                           中古物件一覧に戻る中古物件一覧に戻る