(有)健光住宅メニュー 
     「メインメニュー」 「土地物件」 「中古物件」 「借家・アパート」 「会社概要」 「資料請求」

 東原「築浅・ファースの家」
 
  価格:2,980万円 取引形態:専任
所在  那須塩原市東原字天蚕場103−●●
面積
 土地:615.28u (186.12坪)
 建物:127.86u (38.67坪)
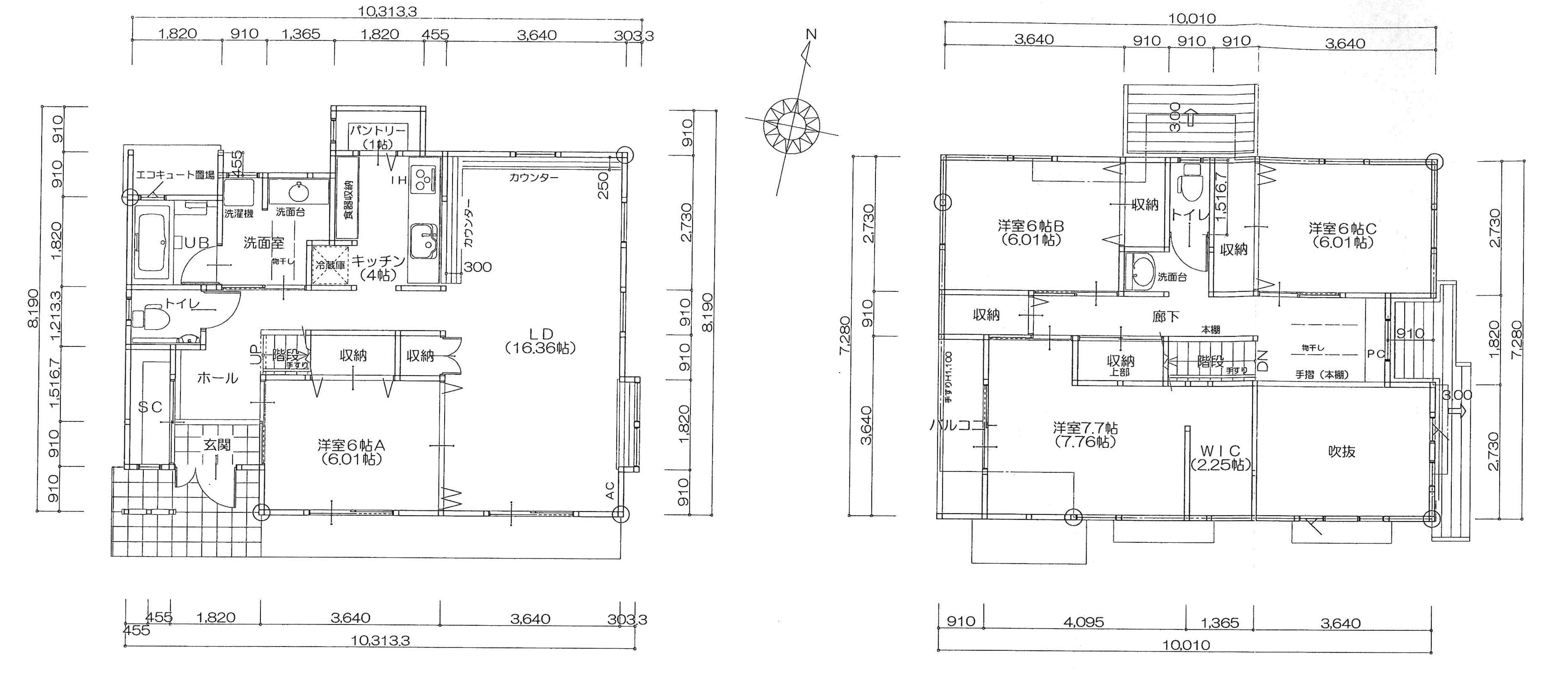
間取  建物図面はこちらから
接面道路  西 巾約8.4m 舗装道路
設備  
 電気:東京電力  水道:井戸  ガス: IHを利用

 排水:合併浄化槽  その他排水:合併浄化槽

建物構造  木造亜鉛メッキ鋼板葺2階建
築年月  新築:令和4年3月
築浅(築後4年)のファース家のご紹介です。
土地は186坪。2台分のカーポートと物置がございます。自家井戸の為、水道代はかかりません!土地は未開拓のため、ドッグランや家庭菜園を造っていくスペース充分にあります。
ファースの家の特徴は発砲ウレタンやトリブルガラス・専用の空気循環システムを使い、高気密・高断熱、全館空調に近い快適さ、空気がきれい(健康住宅)、地震に強い構造です。
間取は4LDK。リビング(22帖)は吹抜となっており、セパレートして6帖部屋をつくる事ができます。築浅注文住宅・ファースの家ですのでとにかく綺麗で設備は完璧です。
資材価格高騰の為、新築をお考えの方是非ご検討ください。

資料請求,案内のご予約等はこちらからお申し込みください★

外観
1F
2F
空気循環システム(屋根裏)
                           
                           中古物件一覧に戻る中古物件一覧に戻る